項目信息
項目名稱:北京中海 · 京西里大區(一標段)
項目地點:北京 · 房山區
景觀面積:8510㎡
竣工時間:2020.7.13
開發商:北京中海興良房地產開發有限公司
景觀設計:HILL希爾景觀
景觀施工單位:上海嘉來景觀工程有限公司

帝都風華——卷啟
京城,坐居泱泱華夏中原地區,一直以來被作為經濟重鎮和文化高地。帝王氣脈的烙印使項目所在地—中關村在時代洪流中始終蘊藏一股恢弘而深邃的穩重。項目的設計初衷是于一方寧靜中再現帝王盛世之繁華,營造住宅區華貴雅致的居住氛圍。

尊貴古雅——概念
本案以現代新中式風格為基調,整體布局沿用恭王府花園尊貴大氣的空間藝術,從五進式四合院落的組合靈感出發,以嚴謹的中軸線貫穿和對稱為主要手法,并著重于景觀營造延伸建筑細節,打造尊貴華美不失古典雅致的人居環境。
△項目平面圖

上海嘉來作為北京中海·京西里(大區一標段)的景觀施工單位,以十載風雨歷程,凝聚無盡情懷、執著與匠心,傾心打造出本案近萬方充滿古樸優雅的新中式風情與東方意蘊的景觀園林。并通過“門第、花蔭、小榭、水池”等一系列獨具匠心的景觀節點,仿若鑲嵌在項目上那一顆顆熠熠生輝的珍珠,淋漓盡致的奉獻給大家。
凝聚情懷,執著匠心——工藝
01 水系結構
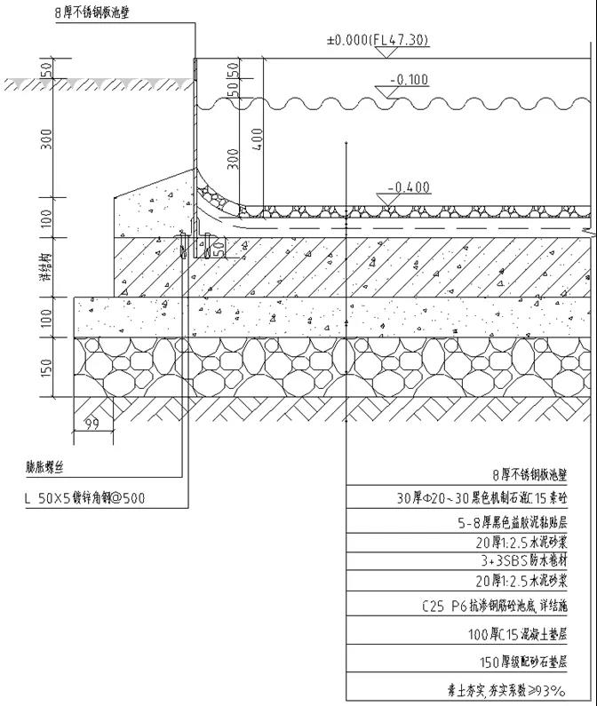
水系池壁采用8mm厚鍍鋅鋼板做法,原設計將鍍鋅鋼板通過膨脹絲和角鐵固定于地面,由于擔心固定的牢固性及防水性,我們專派技術團隊進行實地勘查,并協同項目部與開發商領導現場溝通優化解決方案,最終確定采用預埋鐵焊接固定。原設計雙層SBS卷材直接與鍍鋅鋼板相接,考慮到防水效果不太好,為防止后期水系漏水,根據現場情況,對原設計圖紙進行優化。

△ 原設計圖紙
固定池壁后,鋼板底部抗滲混凝土護腳處理,將鍍鋅鋼板底部澆筑封死,提高防水效果。增加一層滌綸高分子防水卷材,澆筑6cm抗滲混凝土,再加2層SBS防水卷材,經過多重防水措施,最終水景效果完美呈現。

△ 優化后圖紙

△ 圖1 綁筋支模,圖2 池壁安裝,圖3 焊點打磨

△ 圖4、5 內外抗滲混凝土護腳,圖6 滌綸高分子卷材

△ 圖7 滌綸卷材上抗滲混凝土,圖8 做SBS防水卷材
02 園路鋪裝
本案的園路采用十字卡嚴格控制縫隙鋪裝。相對于高端項目常規做法及保護措施提出了更高的施工要求。

△園路基礎施工

△石材到場打包

△石材樣板鋪裝
由于交叉施工的影響,堆放的石材和鋪貼好的石材不可避免的會出現各種掉角、破損情況。為了減少損失避免影響進度,及時做好材料保護和成品保護措施。

△現場成品保護
施工難點
施工現場空間較小,各單位交叉施工。施工通道為園路鋪裝位置,是所有施工單位的必經之路,這給我們施工帶來一定難度。特別是北側廊架下鋪裝,道路僅僅2.4米寬,是唯一的建筑出入戶通道。白天各單位施工人來人往影響園林進度,廊架鐵藝單位在上部焊接龍骨,搭設腳手架,影響園林單位進料鋪裝。園林單位只能晚上加班施工,錯開施工高峰期。
03景墻干掛
鍍鋅鋼管加工主龍骨,主龍骨要保證滿焊,焊接部位焊渣清理后要及時涂刷防銹漆,用螺栓把干掛件固定在角鋼上,在石材背部四個角開槽,采用全栓式涂抹云石膠將石材干掛于干掛件上,保證面層鋪貼平整,對縫整齊。

△景墻干掛實拍

△崗亭干掛實拍
04苗木種植
綠籬采用南方倒苗栽植手法,優美的弧線,飽滿而又流暢。最終種植效果得到開發商的一致認可。由于施工正值夏季,天氣炎熱,新栽植的苗木水分蒸發較快,為了保證苗木自身水分不被蒸發,搭設防曬網覆蓋,減少水分蒸發,保證苗木的成活率。

△現場綠籬栽植

圖1 綠籬遮陽覆蓋,圖2 細節綠籬修剪
數進門第,言說歸家禮序——一進
正門威嚴肅穆,遒勁有力的筆畫勾勒出尊貴大氣的儀式感。門柱上雕琢出檐垂花,與其上部的枋頭雕飾、兩側雀替及后排梁枋相互映襯,古樸的營造手法承載著古王府工匠的別出心裁,傳承皇家禮序,彰顯皇家威儀氣勢。



水山擷秀,花蔭澄懷
復前行,可見一條筆直的石板路聯通著花園正門和公共街區。由景墻一側進入林蔭道,豁然開朗。青樹翠蔓爭相蒙絡搖綴,偶聞鳥燕呢喃,清亮的和鳴在綠蔭里吞吐著幾許俏皮的沁涼。一逕抱幽山,居然城市間。



水木清華,魚戲綠波——二進
若從榆關處踏入,即來到蔥蘢生動的花園。一段被歲月珍藏的雅意古韻便在眼前緩緩流動起來。四合式結構將喧囂的風攔在這片寧和靜謐之外。日光透過枝葉間隙悄然傾瀉而下,光斑裹挾著投影在素雅的灰色路面游移舞動,以光影為媒譜出自然韻律。




經平臺穿過林蔭,曲徑便在通幽深處成景。暮色四合,碧草、青石、翠樹與烏蓬皆在萬籟俱寂中肆意生長,相映成趣。月華皎潔,晚風輕襲,燈影閃閃爍爍,如螢蟲游覓林間。



曲徑通幽,梅亭賞雪
信步前行,梅亭向著四角的天幕生長出古樸的力量,深沉的紅棕色棱柱莊重不失幽雅,色調對比考究周到。行于臺上,觸手可在樹干的紋理間摩挲游走,于一呼一吸間感受生命生長的力量。



凌虛觀魚,框景造畫
年光開柳色,池影泛云華。通過對山石、綠樹、碧水等景觀營造,移步異景,將山川美景納于一園,師法自然,行云流水間兼具南方之秀、北方之雄。




心即所向,即為吾鄉——卷合
中海社區全景追求寫意和靈秀,依托當地渾厚的文化底蘊及現代精巧的造景手法,在經緯間交錯相攜,明暗冷暖呼應,色彩流動變幻中鑄就高妙的音律上的美感;更在造園中借助景觀小品散逸清朗雅致的風華,力求實現自然運動變幻的博遠浩渺,使居者感知今人造園的真誠和獨立性。

或許京西里之妙就在于山窮水復之后回眸,于須臾間找到自我,驀然發現心之所向處即真我歸處,柳暗花明。

本文中除“工藝”板塊圖文外,其余圖文為希爾景觀原創供稿
版權歸原作者所有,僅供學習交流!